Bouwtekening poppenhuis vindt je hier! en ook voor je bouwtekening poppenhuis meubels

Dit houten poppenhuis is een droom voor elk meisje.
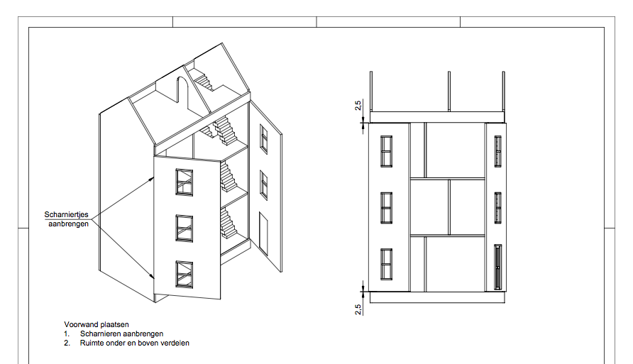
Dit poppenhuis kan je zelf maken in twee varianten en wel een echte stadswoning, of een luchtkasteel. De stadswoning poppenhuis is voorzien van kleine trappen en echte ramen.
Als je zelf dit poppenhuis wil gaan maken, dan kan je dat doen van vurenhout en mdf.
De duidelijke en stap voor stap bouwtekening bevat zaaglijsten waardoor dit leuke doe het zelf poppenhuis makkelijk is om zelf te maken.
Natuurlijk bevat deze tekening ook een handige materiaallijst zodat je precies weet wat je allemaal nodig hebt. Naast mdf en vurenhout heb je voor dit poppenhuis ook nog kleine spijkertjes en natuurlijk houtlijm nodig.
Met de duidelijke poppenhuis bouwtekening is het mogelijk om binnen korte tijd zelf een mooi poppenhuis te maken die aan alle wensen zal voldoen.

Poppenhuis maken met een bouwtekening?
Ja dat kan! Zelf een mooi poppenhuis maken van hout is helemaal niet zo moeilijk als dat je misschien wel dacht. In dit artikel vertellen we jou alles over hoe je zelf een poppenhuis kan maken aan de hand van een duidelijke en stap voor stap bouwtekening.
Bij dit leuke doe het zelf project met hout is een poppenhuis tekening onmisbaar, omdat je als het ware een miniatuur huis gaat maken.
De afmetingen en maten moeten exact kloppen bij een poppenhuis als je wil dat jou doe het zelf poppenhuis ook daadwerkelijk een succes wordt.
De feestdagen staan weer voor de deur en wat is er nou leuker dan het krijgen van een poppenhuis?
Vanaf nu hoef je geen dure uitgave meer te doen om een poppenhuis te kopen in de winkel, maar maak je deze gewoon zelf met een bouwtekening.
Natuurlijk kan je hierbij ook zelf meubeltjes voor een poppen huis maken, zodat je het helemaal kan inrichten zoals jij of jou kind of kleinkind dat wil.
Ook kan je kiezen uit verschillende modellen poppenhuizen die je zelf kan maken met de bouwtekening die je hieronder kan downloaden. Wat dacht je bijvoorbeeld van een echt pakhuis als poppenhuis? Alles is mogelijk!
Doe het zelf poppenhuis maken
Het is misschien wel de droom van elk meisje, een poppenhuis. Helaas zijn de prijzen voor een mooi poppenhuis in de winkel erg hoog, maar vanaf nu is dat helemaal niet meer nodig.
De bouwtekening voor een poppenhuis laat jou precies zien hoe jij in duidelijke stappen zelf een poppenhuis kan maken, en daar heb je geen jarenlange ervaring als klusser of doe het zelver meer voor nodig.
Een doe het zelf poppenhuis maken begint natuurlijk met het aanschaffen van het juiste materiaal voor een poppenhuis.
Mdf is een houtsoort welke zich makkelijk laat bewerken, en dus zeer geschikt is als je een doe het zelf poppenhuis met meubeltjes wil gaan maken.

Natuurlijk kan je er naderhand voor kiezen om de poppenhuis meubeltjes in een leuke kleur te verven, zodat je er helemaal jou eigen draai aan kan geven.
Poppenhuis meubels zelf maken van hout is niet alleen heel erg leuk om te doen, maar op deze manier kan jij zelf de inrichting van het poppenhuis bepalen. Er zijn verschillende soorten doe het zelf poppenhuizen die je kan maken.
Wat dacht je bijvoorbeeld van een echt grachtenpand als poppenhuis van hout? Niet alleen heel erg trendy, maar ook nog eens erg leuk om te maken.
Bouwtekening poppenhuis meubels stappenplan
Poppenhuis meubels kunnen natuurlijk niet ontbreken in een echt poppenhuis. Het leuke van zelf meubeltjes voor een poppenhuis maken is, dat je jou eigen fantasie er volledig op los kan laten.
Wil je bijvoorbeeld een klein tafeltje met stoeltjes van hout maken voor in een poppenhuis? Super leuk en eenvoudig zelf te maken.
Als je poppenhuis meubels zelf wil maken van hout, dan kan je dat het beste doen met een kleine figuurzaag. Deze zijn niet duur in aanschaf en zeer handig om kleine meubeltjes mee uit te zagen.
Aan de hand van de poppenhuis bouwtekening lees je precies hoe je dat moet doen, en heb je ook nog eens een handige materialen lijst bij de hand.

Ook alle exacte afmetingen en hoogtes voor een poppenhuis en poppenhuis meubeltjes vind je terug in deze poppenhuis bouwtekening die je hieronder kan downloaden.
Vanaf nu kan jij dus zelf een compleet poppenhuis maken met meubels, zonder dat je dat veel geld gaat kosten. Je hebt vast al wel eens rondgekeken in de speelgoedwinkel naar de prijzen van een mooi houten poppenhuis, en je zal geschrokken zijn.
Nu is dat niet meer nodig want met de poppenhuis tekening kan je dat helemaal zelf maken. Wil je direct aan de slag en zelf een poppenhuis maken met poppenhuis meubeltjes? Klik dan hier >>
Dit vind je misschien ook interessant!

Bouwtekening overkapping plat dak nodig?
Bouwtekening overkapping plat dak nodig?Ontdek Jouw Doe-Het-Zelf Droom: Download Jouw Bouwtekening voor een Prachtige Overkapping met Platlees verderZelf Draaibare Lamellen Maken
Zelf Draaibare Lamellen Maken: Complete HandleidingDraaibare lamellen kunnen een prachtige aanvulling zijn op je huis of tuin. Ze biedenlees verderHouten pergola zelf maken in 7 stappen, download tekening
Zelf een Pergola Maken: Een Complete GidsEen pergola in je tuin is een prachtige manier om je buitenruimte te verrijken. Het biedt nietlees verderBouwtekening hoekbank loungebank zelf maken in 20 stappen
Hoe Maak je Zelf een Hoekbank Loungebank? Stappenplan voor een Unieke DIY Loungebank van HoutEen stijlvolle en comfortabele hoekbanklees verderFietsenhok kleine voortuin maken in 20 stappen
Bouwtekening Fietsenhok: Stap-voor-Stap HandleidingEen fietsenhok is dé oplossing om fietsen droog en veilig te stallen. Of je nu eenlees verderEenvoudige kippenhok maken met bouwplan
Bouwtekening Kippenhok: Een Stap-voor-Stap Gids voor een Perfect KippenverblijfEen eigen kippenhok bouwen kan een leuke en belonendelees verderHouten hondenhok buiten
Bouwtekening Hondenhok: De Complete Handleiding om Zelf een Hondenhok te MakenAls je een hond hebt, wil je natuurlijk dat je trouwelees verderBouwtekening Buitenkeuken Kamado
Bouwtekening Buitenkeuken Kamado: Een Complete GidsEen buitenkeuken met een kamado is een droom voor elke barbecue-liefhebber. Eenlees verderKapschuur overkapping bouwtekening in 20 stappen – Download NU!
Bouwtekening Kapschuur PDF: Je Eigen Kapschuur MakenWil je zelf een kapschuur bouwen, maar weet je niet waar je moet beginnen? Eenlees verderHoe verdien je geld met tiktok? Zo doe je dat zelf
Hoe verdien je geld met TikTok Mastery?Geld verdienen met TikTok kan op verschillende manieren, maar het vereist wellees verderMinibieb kopen of zelf maken met een bouwplan
Minibieb kopen of zelf maken met een bouwtekening en zaaglijstZowel het kopen van een minibieb als het zelf maken ervan heeft zijn eigenlees verderAlternatieve kerstboom zelf maken van hout met een bouwtekening
Alternatieve kerstboom zelf maken met een bouwplanHet zelf maken van een alternatieve kerstboom kan een creatieve en leuke activiteit zijn.lees verderPuppy blijft bijten, wat kan je zelf eraan doen?
Puppy blijft bijten, 100 tips om zelf te doen Het bijten van een puppy kan een uitdagend gedrag zijn om aan te pakken.Hier zijn 100 tipslees verderAardbeientoren maken van hout in simpele stappen
Aardbeientoren maken van hout in 10 stappenEen aardbeientoren is een verticale structuur die ruimtebesparend is en perfect voor het kwekenlees verderLabradoodle gedragsproblemen? Maak voor je Labradoodle de juiste spullen!
Labradoodle gedragsproblemen wat kan je doen?Het omgaan met gedragsproblemen bij eenlees verderOmbouw wasmachine en droger van hout maken
Ombouw wasmachine en droger van hout zelf maken?Het ombouwen van een wasmachine en droger met hout kan een leuk doe-het-zelfproject zijnlees verderPup 6 maanden blijft bijten – 50 tips om te voorkomen
Pup 6 maanden blijft bijten - 50 tips om te voorkomenNatuurlijk! Hier zijn 50 tips om te voorkomen dat een pup van 6 maanden blijftlees verderVoedingsschema droogtrainen vrouw 5 TIPS
Voedingsschema droogtrainen vrouw zelf bijhouden en doenHet droogtrainen of "cutten" is een periode waarin je probeert lichaamsvet telees verderSteektrap maken van hout in simpele stappen
Steektrap maken met een 6 stappenplanAls je een houten steektrap wilt maken, zijn hier enkele belangrijke stappen die je moetlees verderKauwgombal machine maken in 8 stappen
Kauwgombal machine maken van hout? Maak het zelf!Het maken van een kauwgombalmachine van hout kan een leuk en creatieflees verderDroogtrainen voor vrouwen doe je zo!
Droogtrainen vrouw 25 Tips"Droogtrainen" is een term die vaak wordt gebruikt in de fitnesswereld om te verwijzen naar het proces waarbijlees verderBorder collie gedragsproblemen | Bouw voor je Border Collie de juiste spullen!
Border collie gedragsproblemen, wat kan jezelf doen?Border collie gedragsproblemen: Border Collies zijn slimme en energieke honden die bekendlees verderUitschuifbare zoldertrap met leuning
Uitschuifbare zoldertrap met leuning maken, lees verderhelaas is er alleen tekening zonder leuningOm een uitschuifbare zoldertrap metlees verderMotor schuurtje bouwen met een handige bouwtekening?
Motor schuurtje bouwen met een uitgebreide bouwtekening?Als u geïnteresseerd bent in het maken van een houten schuurtje voor uw motor,lees verderOverkapping met barretje nodig, gebruik de juiste bouwplan
Overkapping met barretje nodig, gebruik de juiste bouwplan met zaaglijstOm een overkapping met een barretje te maken, volg je dezelees verderDubbele poortdeur maken met een handige bouwplan?
Dubbele poortdeur maken met handige bouwplan en zaaglijst?Als u op zoek bent naar een dubbele poortdeur, zijn er verschillende optieslees verderMotorberging maken met een handige bouwtekening
Motorberging maken met een handige bouwtekening en zaaglijstAls je een motorberging wilt maken, zijn er een paar essentiële stappen dielees verderZadelkast maken bouwtekening nodig?
Zadelkast maken bouwtekening met uitgebreide zaaglijst nodig?Hier is een basisstappenplan voor het maken van een zadelkast met behulp vanlees verderZelf stellingkast maken met handige stappenplan?
Zelf stellingkast maken met handige stappenplan?Als je een stellingkast wilt maken, zijn hier de basisstappen die je kunt volgen:1.lees verderEgelhuis bouwtekening met zaaglijst nodig?
Egelhuis bouwtekening met zaaglijst nodig?Hier is een eenvoudige bouwtekening voor een houten egelhuis:Benodigdheden: - Houtenlees verderGeef een antwoord
No Comments
Be the first to start a conversation